Watch our Auctions Live!
Watch our Auctions Live!

Sunny, Smart and Supremely Convenient

7 Harakeke Road

2

1

1

2

1

1


share

Marketed by Matt Gibson

Sunny, Smart and Supremely Convenient


7 Harakeke Road

Hobsonville, Auckland

Set Date of Sale (Unless Sold Prior) at 12.11.2025 at 2:00 PM

Marketed by Matt Gibson

SET DATE OF SALE: 2PM WEDNESDAY 12TH NOVEMBER (unless sold prior)

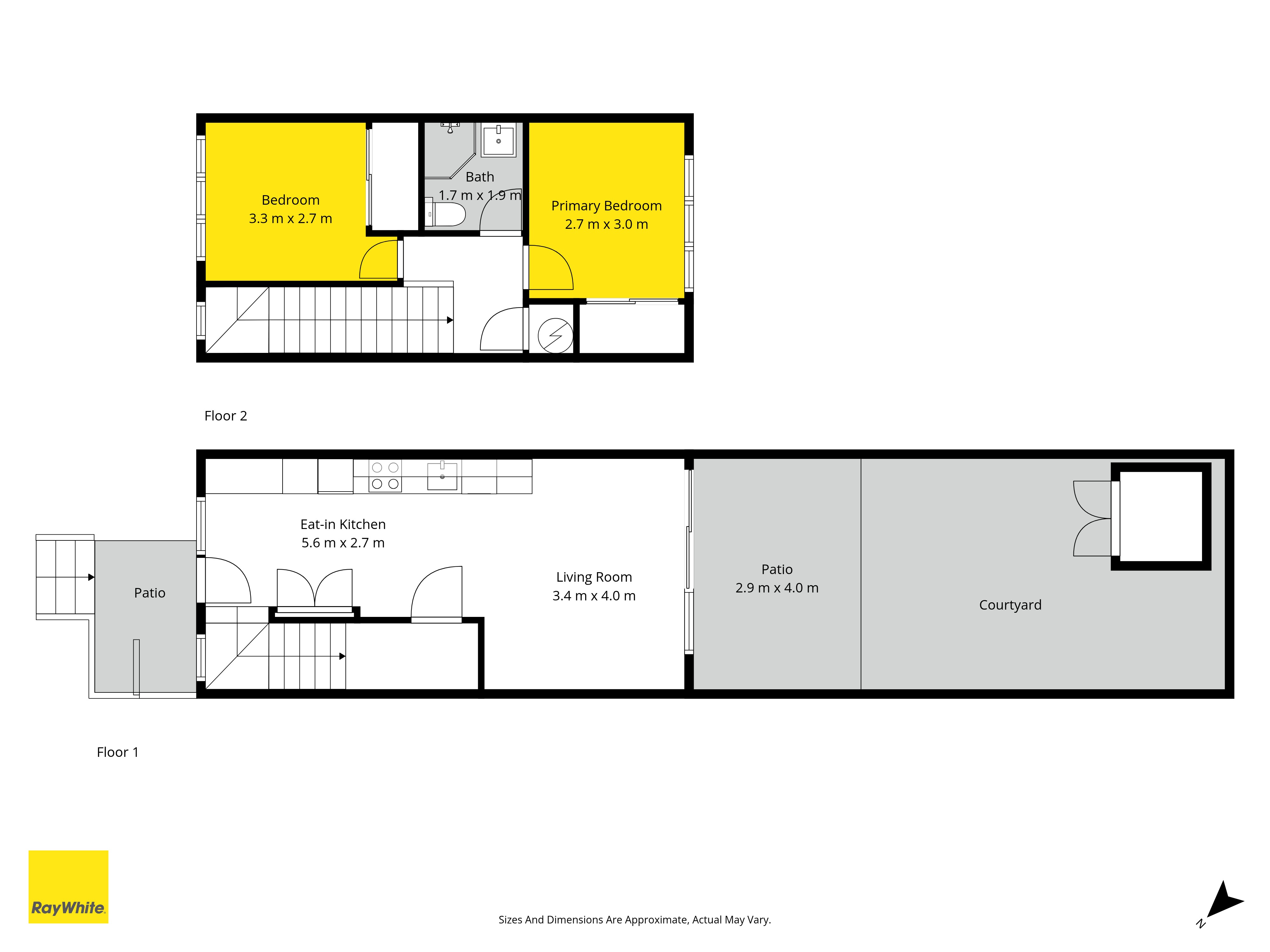
Discover uncomplicated, sun-soaked living at 7 Harakeke Road, Hobsonville.

This immaculate two-bedroom home pairs an open modern kitchen and dining area with a bright lounge that opens to a private sun filled garden - perfect for relaxed weekends and effortless entertaining.

Thoughtfully designed throughout, this home offers extensive storage and smart use of space. An allocated open carpark provides everyday convenience.

Positioned for family life, you're only a short walk from childcare, Hobsonville Primary and Hobsonville Point School. Local cafés and amenities are within walking distance, while the nearby motorway makes commuting straightforward.

Whether you're stepping into home ownership or adding to your property portfolio, this home promises simple, satisfying living in one of Hobsonville's most convenient pockets.

Property Details

Property ID RMU44054

Category
House
Status
Current
Bedrooms
2
Bathrooms
1
OSP
1
Land
93 m²

Inspection times

25 Oct 2:30PM - 3:00PM

26 Oct 2:30PM - 3:00PM


Local Schools

* While every effort has been made to ensure the information displayed is accurate, please check details directly with the school before making decisions based on this information.

Primary
Intermediate
Secondary
Hobsonville Point Primary School - 210m away
Years 1-8
Co-ed
18 De Havilland Road
09 557 0810


St Paul's School (Massey) - 6.0km away
Years 1-6
Co-ed
498 Don Buck Road
09 832 7200


Hobsonville Point Primary School - 210m away
Years 1-8
Co-ed
18 De Havilland Road
09 557 0810


Hobsonville Point Secondary School - 490m away
Year 9-15
Co-ed
Hobsonville Point Road
09 975 7400



Show on map

Make an Appointment

Send an enquiry about this property to the agent


Matt Gibson


Licensee Salesperson

Mobile: 027 629 6001

Phone: (09) 520 9100


You May Also Like


5

3

4


5

3

2

Hobsonville, 307/2 Rauroa Lane

307/2 Rauroa Lane


2

1


2

2

1