Watch our Auctions Live!
Watch our Auctions Live!

DOUBLE GRAMMAR ZONE HOME & INCOME

64 St Andrews Road

7

3

6

7

3

6


share

DOUBLE GRAMMAR ZONE HOME & INCOME


64 St Andrews Road

Epsom, Auckland

Auction at 411 Remuera Road, Remuera (Unless Sold Prior) on 27.05.2026 at 1:00 PM

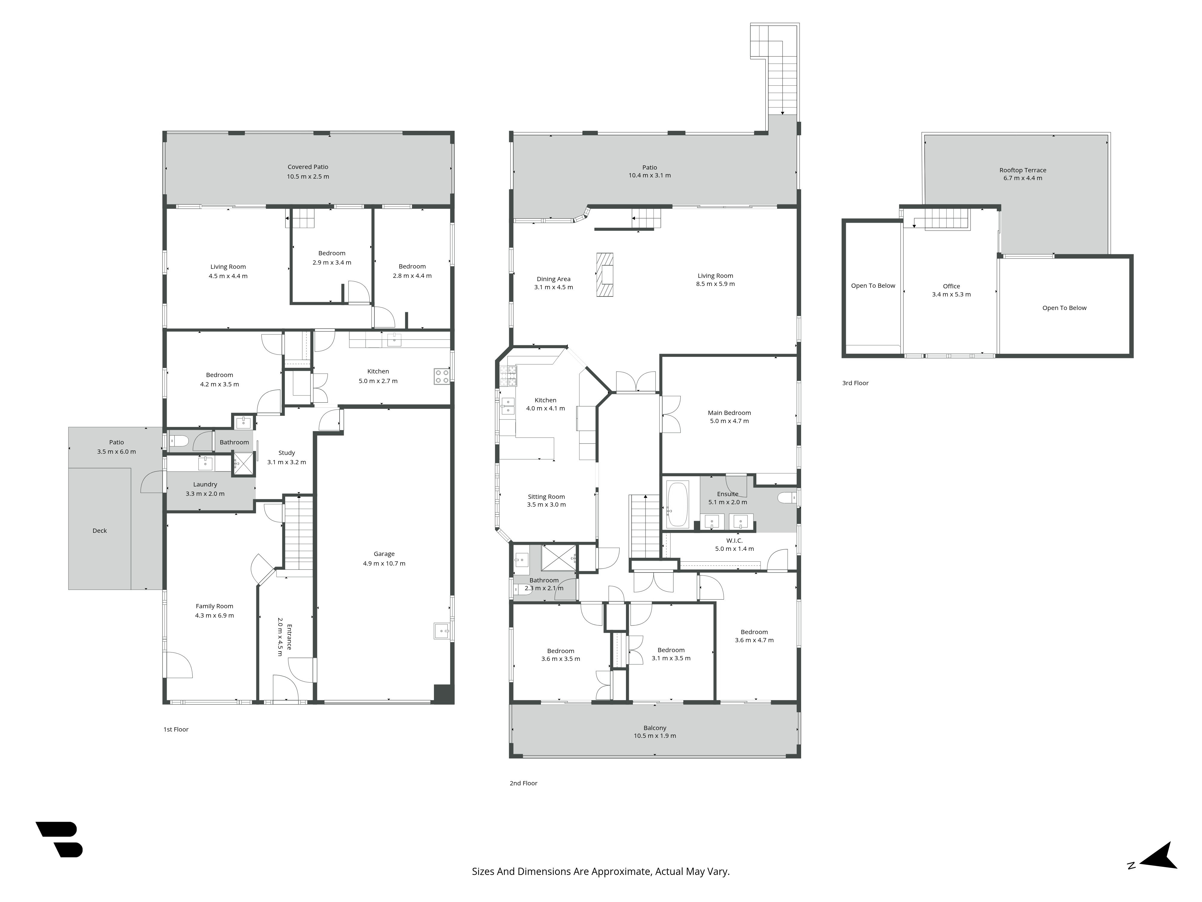
Light, bright and vibrant with versatile lifestyle and entertaining options are key components of this impressively spacious solid masonry residence on sought-after St Andrews Road. Intricately designed, spanning over 400sqm; the two levels and inviting mezzanine create a symphony of larger-than-life family living options.

Upstairs, the main level of the home offers 4 bedrooms, 2 bathrooms, formal dining, 2 lounges, that provide ample space for every stage of your family life. A legal lower-level 3 bedroom granny flat offers an excellent on-site rental, while the connecting door to the main home allows you to combine both spaces into fully integrated dual family living.

The well equipped kitchen, is the social hub of the home, and connects to the split level dining-living room that are separated by the open fireplace. This area opens onto the rear deck overlooking a fully fenced back lawn, creating the perfect safe haven for children & pets. The third living/rumpus room downstairs adds extra flexibility for family life.

With an oversized double garage plus lots of extra space on the cobbled driveway, parking is a breeze. Hidden away from the street, on a quiet rear section under Cross-lease title, this home is ready for new owners to live in & enjoy. Zoned for EGGS, AGS, ANI, and Epsom Normal Primary School, education is very well catered for.

Phone us today to arrange a private viewing or come along to one of our advertised open homes.

Conjuncting agents ALWAYS very welcome.

Property Details

Suburb stats

Property ID RMU45135

Category
Home & Income
Status
Current
Bedrooms
7
Bathrooms
3
Garaging
2
OSP
4

Floor Plan


Inspection times

02 May 1:00PM - 1:30PM

03 May 1:00PM - 1:30PM

09 May 1:00PM - 1:30PM

10 May 1:00PM - 1:30PM

16 May 1:00PM - 1:30PM

17 May 1:00PM - 1:30PM

23 May 1:00PM - 1:30PM

24 May 1:00PM - 1:30PM


Local Schools

* While every effort has been made to ensure the information displayed is accurate, please check details directly with the school before making decisions based on this information.

Primary
Intermediate
Secondary
Epsom Normal School - 320m away
Years 1-6
Co-ed
41 The Drive
09 630 5144


Auckland Normal Intermediate - 610m away
Years 7-8
Co-ed
Poronui Street
09 630 1109


Baradene College - 4.1km away
Year 7-15
Girls
237 Victoria Avenue
09 524 6019


Epsom Girls Grammar School - 1.8km away
Year 9-15
Girls
Silver Road
09 630 5963


Auckland Grammar - 2.4km away
Year 9-15
Boys
Mountain Road
09 623 5400


Baradene College - 4.1km away
Year 7-15
Girls
237 Victoria Avenue
09 524 6019



Show on map

Make an Appointment

Send an enquiry about this property to the agent


Caroline Yau


Licensee Salesperson

Mobile: 021 618 211

Phone: (09) 520 9100

Steve Williams


Licensee Salesperson

Mobile: 027 295 6153

Phone: (09) 520 9100


You May Also Like

Epsom, 2/49 Margot Street

2/49 Margot Street


2

1

1

Epsom, 36 Owens Road

36 Owens Road


6

4

5

Epsom, 64 St Andrews Road

64 St Andrews Road


7

3

6

Epsom, 31 Coronation Road

31 Coronation Road


6

4

3

Suburb Stats

Epsom


Median sale price in March 2026

$2,129,000

5% last month
5% same time as
last year

Monthly Trend

Total Sales in March 2026

57% last month
36 sales
33% same time as
last year

Monthly Sales