Watch our Auctions Live!
Watch our Auctions Live!

Easy Living ...

2A Onslow Street

2

1

4

2

1

4


share

Easy Living ...


2A Onslow Street

Paeroa, Waikato

Sold - 08.11.2021

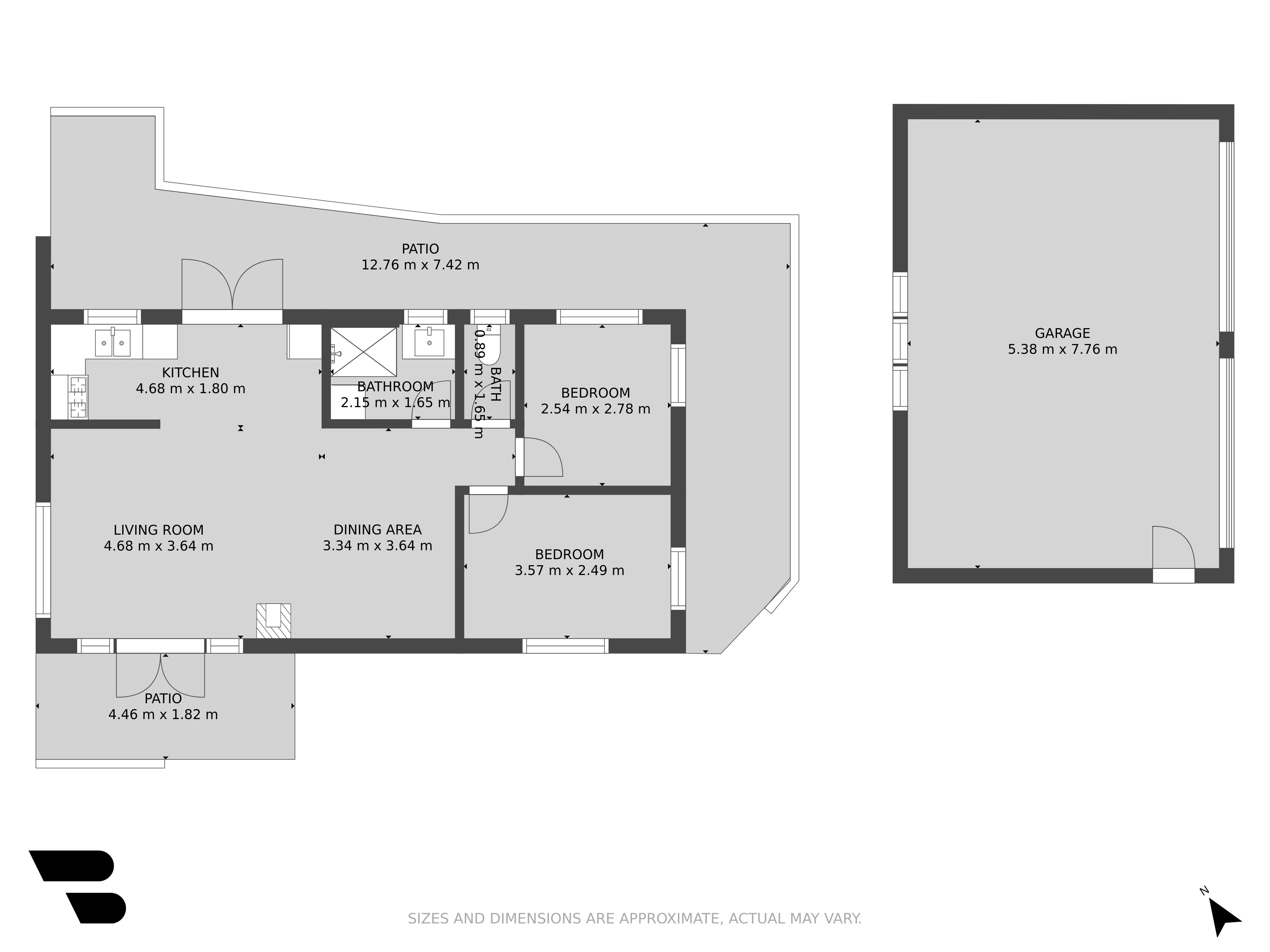
First home buyers - this is your opportunity to secure this super-cute cottage right in the heart of Paeroa. Built circa 2010, with low maintenance living in mind, this two bedroom board and batten home is appealing. Easy open plan living blends seamlessly through to the sunny deck and garden, with the bonus of a large double garage and ample off-street parking. A peaceful, private and child-friendly setting on a 570 square metre (more or less) site. Simply move in and enjoy this home as-is or take the opportunity to make further improvements. Whether you are looking for your first home or contemplating an investment, this is sure to be popular and will sell fast. Priced at $459,000.

PLEASE NOTE: the photos shown have been virtually staged.

To arrange a viewing time, please phone Linda Burrows from Ray White Whangamata on 021 460 144.

Property Details

Property ID RMU31585

Category
House
Status
Sold
Bedrooms
2
Bathrooms
1
Garaging
2
OSP
2
Land
570 m²

Floor Plan



Show on map

Make an Appointment

Send an enquiry about this property to the agent