Watch our Auctions Live!
Watch our Auctions Live!

The Gold Standard: Brick & Block Construction

36A Monteith Crescent

2

1

1

2

1

1


share

Marketed by Matt Gibson

The Gold Standard: Brick & Block Construction


36A Monteith Crescent

Remuera, Auckland

Auction at 411 Remuera Road, Remuera (Unless Sold Prior) on 11.03.2026 at 1:00 PM

Marketed by Matt Gibson

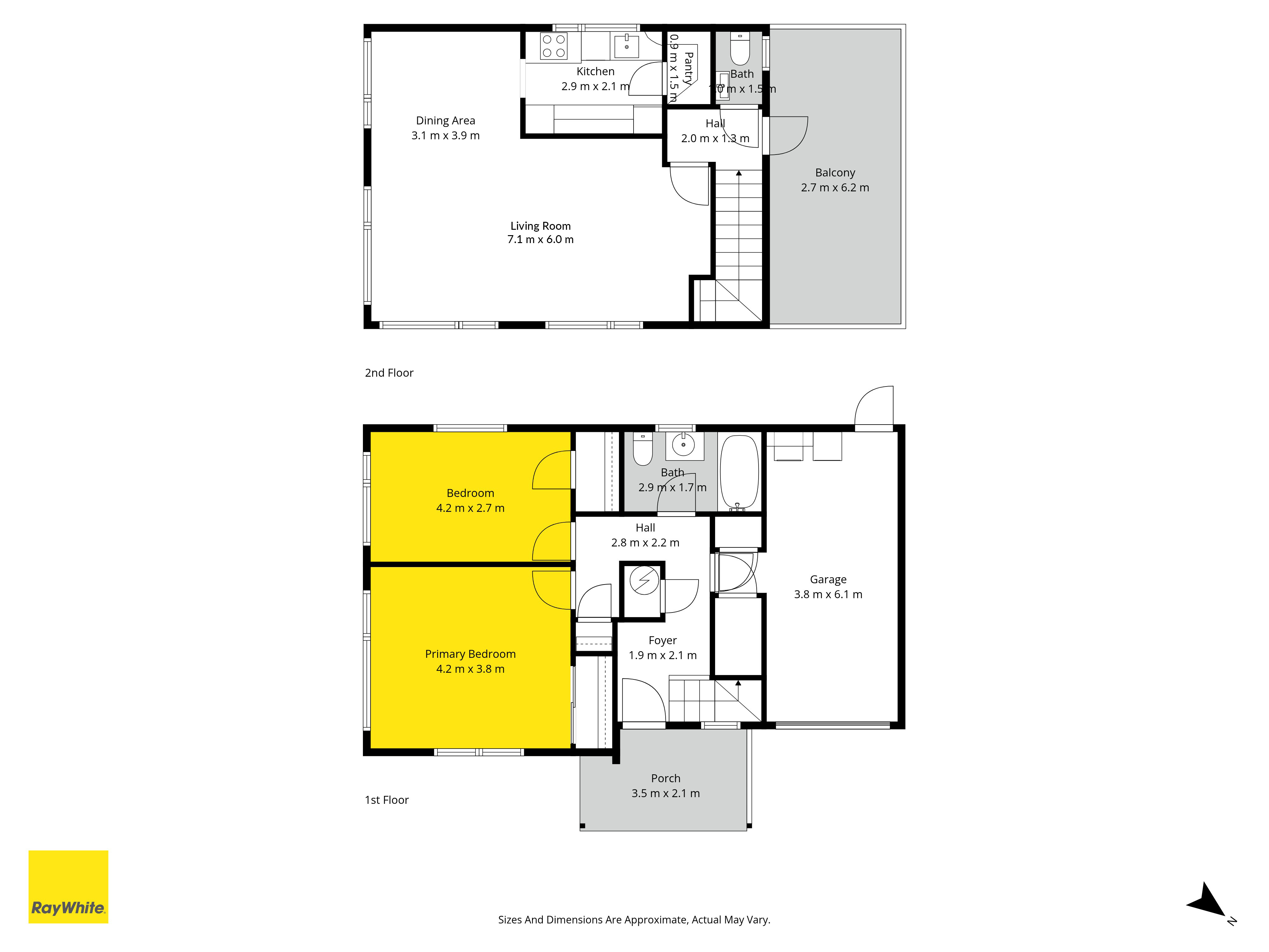
Set in a desirable Remuera location, this home presents an excellent opportunity for professionals, downsizers, or small families seeking a low-maintenance property in a premium neighbourhood.

The heart of the home features open-plan living and dining, seamlessly connected to a well-appointed kitchen. Light-filled and welcoming, this central space flows naturally to a sunny terrace-perfect for morning coffee, entertaining friends, or unwinding at the end of the day.

Outdoors, a garden area provides a place for children and pets to play, adding to the home's family-friendly appeal.

Accommodation includes two comfortable bedrooms, serviced by a bathroom and the added convenience of a separate powder room - ideal for guests.

A single internal-access garage ensures practicality and ease in everyday living.

Positioned within Meadowbank Primary, Remuera Intermediate, Glendowie & Selwyn College school zones. Close to transport services, Meadowbank Shopping Centre and Waiatarua Reserve, this home represents great value for the astute buyer.

Constructed of brick and concrete block, properties like these are seldom available for long - inspect early and experience it for yourself.

Call Matt Gibson on 027 629 6001 for more information.

Property Details

Suburb stats

Property ID RMU44676

Category
House
Status
Current
Bedrooms
2
Bathrooms
1
Garaging
1

Inspection times

21 Feb 11:00AM - 11:30AM

22 Feb 11:00AM - 11:30AM


Local Schools

* While every effort has been made to ensure the information displayed is accurate, please check details directly with the school before making decisions based on this information.

Primary
Intermediate
Secondary
Meadowbank School - 730m away
Years 1-6
Co-ed
Waiatarua Road
09 520 3739


Remuera Intermediate - 2.1km away
Years 7-8
Co-ed
Ascot Avenue
09 522 9890


Baradene College - 2.6km away
Year 7-15
Girls
237 Victoria Avenue
09 524 6019


Selwyn College - 2.5km away
Year 9-15
Co-ed
Kohimarama Road
09 521 9610


Baradene College - 2.6km away
Year 7-15
Girls
237 Victoria Avenue
09 524 6019


Glendowie College - 4.6km away
Year 9-15
Co-ed
Crossfield Road
09 575 9128



Show on map

Make an Appointment

Send an enquiry about this property to the agent


Matt Gibson


Licensee Salesperson

Mobile: 027 629 6001

Phone: (09) 520 9100


You May Also Like

Remuera, 38 Spencer Street

38 Spencer Street


5

3

2

Remuera, 33 Manawa Road

33 Manawa Road


3

1

5

Remuera, 1-4/12 Ventnor Road

1-4/12 Ventnor Road


4

4

2

Remuera, 39 Burwood Crescent

39 Burwood Crescent


5

4

2

Suburb Stats

Remuera


Median sale price in January 2026

$1,685,000

9% last month
24% same time as
last year

Monthly Trend

Total Sales in January 2026

52% last month
12 sales
50% same time as
last year

Monthly Sales