Watch our Auctions Live!
Watch our Auctions Live!

REMUERA DGZ WEATHERBOARD COTTAGE

110 Bassett Road

1

1

2

1

1

2


share

Marketed by Jayne Kiely & Amy Robertson

REMUERA DGZ WEATHERBOARD COTTAGE


110 Bassett Road

Remuera, Auckland

Auction at In rooms, 411 Remuera Road (unless sold prior) on 11.12.2025 at 12:00 PM

Marketed by Jayne Kiely & Amy Robertson

**AUCTION: 12pm, Thursday 11 December 2025, in rooms, 411 Remuera Road (unless sold prior)**

Download Files: https://filefling.co.nz/property/110bassettro0

Calling all first home buyers, investors and those wanting a sunny, snug bolt hole moments to Newmarket and close to Bloodworth Park and the boardwalks of Hobson Bay.

This home has been a stellar investment for our owners for two decades and has recently been renovated so all the hard work has been done. Turn key living with all day sunshine and manicured English-style terraced gardens.

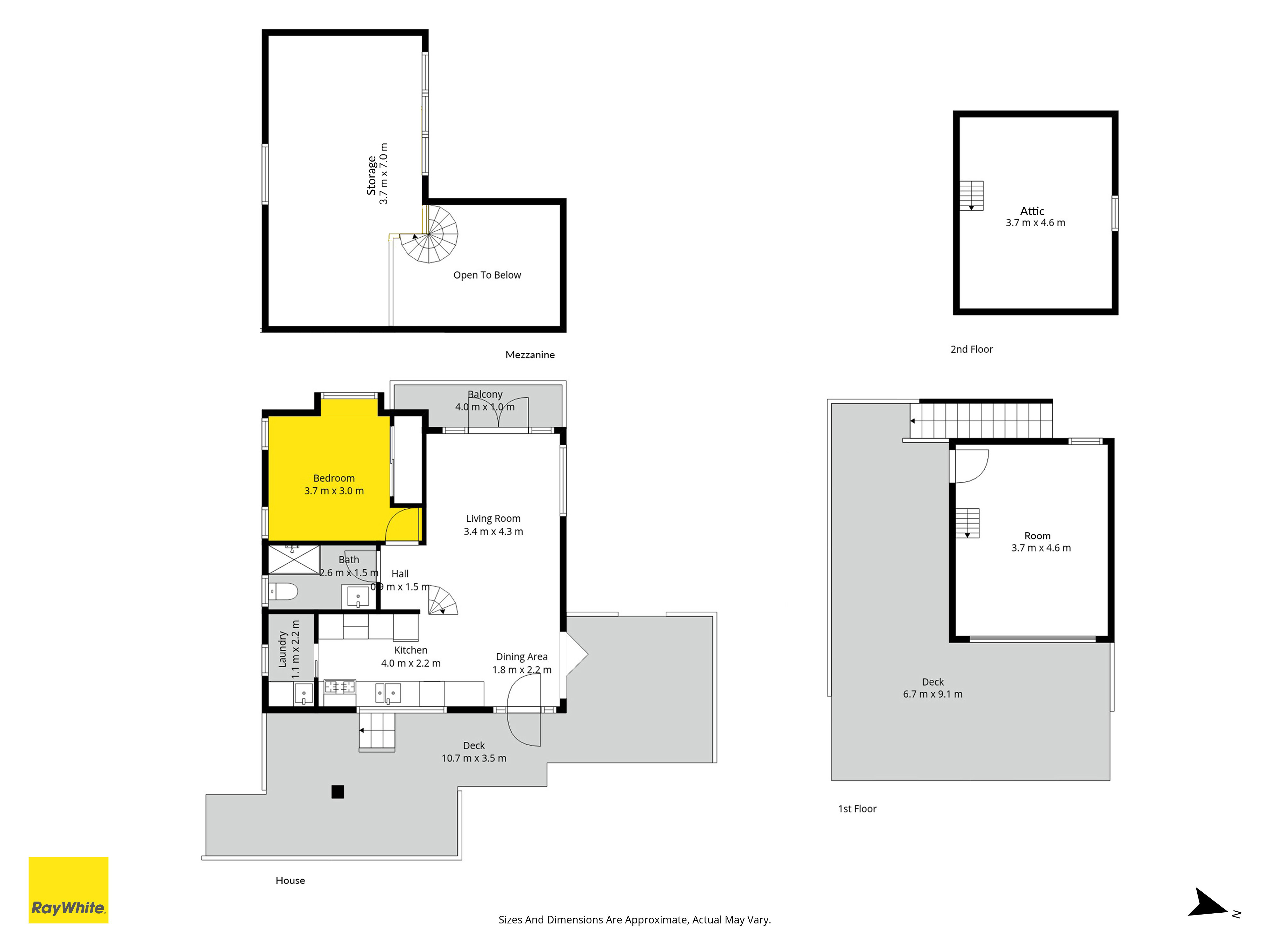
One double bedroom plus a large mezzanine upstairs, a sunny lounge room with lofty ceilings, a modern galley-style kitchen and open plan dining. A separate bathroom and laundry room as well. Great flow to outdoor seating and dining, as well as the bonus of a loft for a work-from-home option on the street level.

Off-street parking plus an extra park for a small vehicle. We have included concept plans showcasing a stunning renovation, which was mooted by our current owners.

A great package and excellent schooling options. Secure before Christmas and start the New Year with a great postcode.

The mezzanine floor is staged as a bedroom and the garage is staged as extra living space for marketing purposes.

• Crosslease

• Floor Area: 73sqm (approx.)

• Land Area: 1/2 share of 535sqm (mol)

• Council Rates: $4,803.66 p/a (2025/26)

• CV: $1,600,000 (2024)

• School Zones: Newmarket School, Remuera School, Remuera Intermediate, Auckland Grammar School, Epsom Girls Grammar School, Baradene College

• Residential - Single House Zone

• Rental Appraisal: $650 - $680 per week

Please call JAYNE KIELY 021 352 007 or AMY ROBERTSON 0274 820 100

We work with all agencies. Conjunctions are welcome.

Inspection times

23 Nov 2:00PM - 2:30PM

27 Nov 12:00PM - 12:30PM

30 Nov 2:00PM - 2:30PM

04 Dec 1:00PM - 1:30PM

07 Dec 2:00PM - 2:30PM

Property Details

Suburb stats

Property ID RMU41593

Category
House
Status
Current
Bedrooms
1
Bathrooms
1
OSP
2


Local Schools

* While every effort has been made to ensure the information displayed is accurate, please check details directly with the school before making decisions based on this information.

Primary
Intermediate
Secondary
Newmarket School - 890m away
Years 1-6
Co-ed
7 Gillies Avenue
09 520 2959


Remuera School - 1.8km away
Years 1-6
Co-ed
25 Dromorne Road
09 520 2458


Baradene College - 1.5km away
Year 7-15
Girls
237 Victoria Avenue
09 524 6019


Remuera Intermediate - 2.5km away
Years 7-8
Co-ed
Ascot Avenue
09 522 9890


Epsom Girls Grammar School - 1.2km away
Year 9-15
Girls
Silver Road
09 630 5963


Auckland Grammar - 1.3km away
Year 9-15
Boys
Mountain Road
09 623 5400


Baradene College - 1.5km away
Year 7-15
Girls
237 Victoria Avenue
09 524 6019



Show on map

Make an Appointment

Send an enquiry about this property to the agent


Jayne Kiely


Licensee Salesperson

Mobile: 021 352 007

Phone: (09) 520 9100

Amy Robertson


Licensee Salesperson

Mobile: 027 482 0100

Phone: (09) 520 9100


You May Also Like

Remuera, 9 Maungarei Road

9 Maungarei Road


4

2

3

Remuera, 6/37 Upland Road

6/37 Upland Road


3

2

1

Remuera, 51 Maungarei Road

51 Maungarei Road


3

1

2

Remuera, 204/4 Victoria Avenue

204/4 Victoria Avenue


3

3

2

Suburb Stats

Remuera


Median sale price in October 2025

$2,094,000

15% last month
14% same time as
last year

Monthly Trend

Total Sales in October 2025

45% last month
48 sales
45% same time as
last year

Monthly Sales