Watch our Auctions Live!
Watch our Auctions Live!

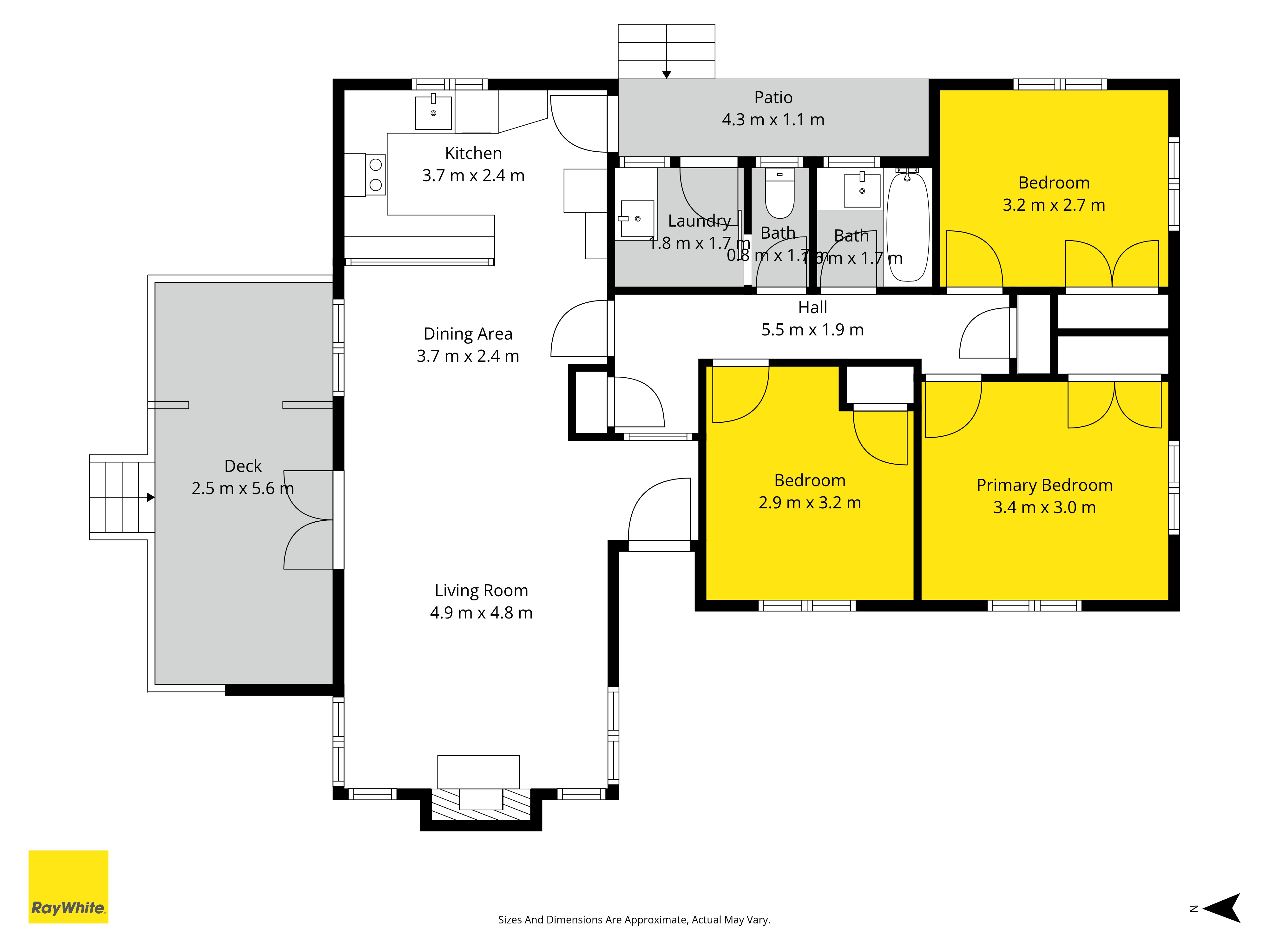
Solid Standalone Home in a Quiet Opaheke Cul-de-Sac

12 Rembrandt Place

3

1

2

3

1

2


share

Marketed by Harry Taylor & Ling Gao

Solid Standalone Home in a Quiet Opaheke Cul-de-Sac


12 Rembrandt Place

Opaheke, Auckland

$695 / Week  

Marketed by Harry Taylor & Ling Gao

Positioned at the end of a peaceful cul-de-sac, this classic standalone home delivers warm, dependable living with a timeless sense of character. Subtle retro charm is thoughtfully blended with modern updates, creating a home that feels both nostalgic and effortlessly liveable. The layout is practical and inviting, featuring three well-proportioned bedrooms and an open-plan kitchen, dining, and living area that forms the social heart of the home. Large windows invite abundant natural light, while the living space flows seamlessly to an exceptionally well-fenced outdoor area-a true highlight of the property.

Step outside to a sun-drenched deck, perfectly positioned for entertaining, relaxed summer evenings, or watching children and pets play safely within the fully enclosed grounds. The outdoor space offers generous room to enjoy without the upkeep, striking an ideal balance between lifestyle and low maintenance. Off-street parking for two vehicles adds everyday ease, while the location is superb-within walking distance to local schools, close to shops and amenities, and well connected by public transport.

A warm, solid home with effortless indoor-outdoor flow, excellent sun, and all the fundamentals in place-ready for its next occupants to move in and enjoy.

Property Details

Property ID RMU44571

Available
19-01-2026
Category
House
Status
Current
Bedrooms
3
Bathrooms
1
OSP
2
Rent
$695 / Week
Bond
$2780
Pets
No
Furnished
No
Smokers
No

Features



Local Schools

* While every effort has been made to ensure the information displayed is accurate, please check details directly with the school before making decisions based on this information.

Primary
Intermediate
Secondary
Opaheke School - 120m away
Years 1-8
Co-ed
Tasman Drive
09 298 5410


Opaheke School - 120m away
Years 1-8
Co-ed
Tasman Drive
09 298 5410


Papakura Intermediate - 1.1km away
Years 7-8
Co-ed
50 Settlement Road
09 298 8737


Rosehill Intermediate - 1.4km away
Years 7-8
Co-ed
Jupiter Street
09 298 5827


Rosehill College - 1.3km away
Year 9-15
Co-ed
5 Edinburgh Avenue
09 295 0661


Papakura High School - 1.4km away
Year 9-15
Co-ed
Willis Road
09 296 4400



Show on map

Make an Appointment

Send an enquiry about this property to the agent


Harry Taylor


Head of New Business & Letting

Mobile: 022 560 3069

Ling Gao


Head of Property Management

Mobile: 021 588 048