Watch our Auctions Live!
Watch our Auctions Live!

TWO B/R MID CENTURY OPPORTUNITY IN MEADOWBANK

208A Gowing Drive

2

1

2

2

1

2


share

Marketed by Jayne Kiely & Amy Robertson

TWO B/R MID CENTURY OPPORTUNITY IN MEADOWBANK


208A Gowing Drive

Meadowbank, Auckland

Auction at In rooms, 411 Remuera Road (unless sold prior) on 10.12.2025 at 11:00 AM

Marketed by Jayne Kiely & Amy Robertson

**AUCTION: 11am, Wednesday 10 December 2025, in rooms, 411 Remuera Road (unless sold prior)**

Download Files: https://filefling.co.nz/property/208agowingdr0

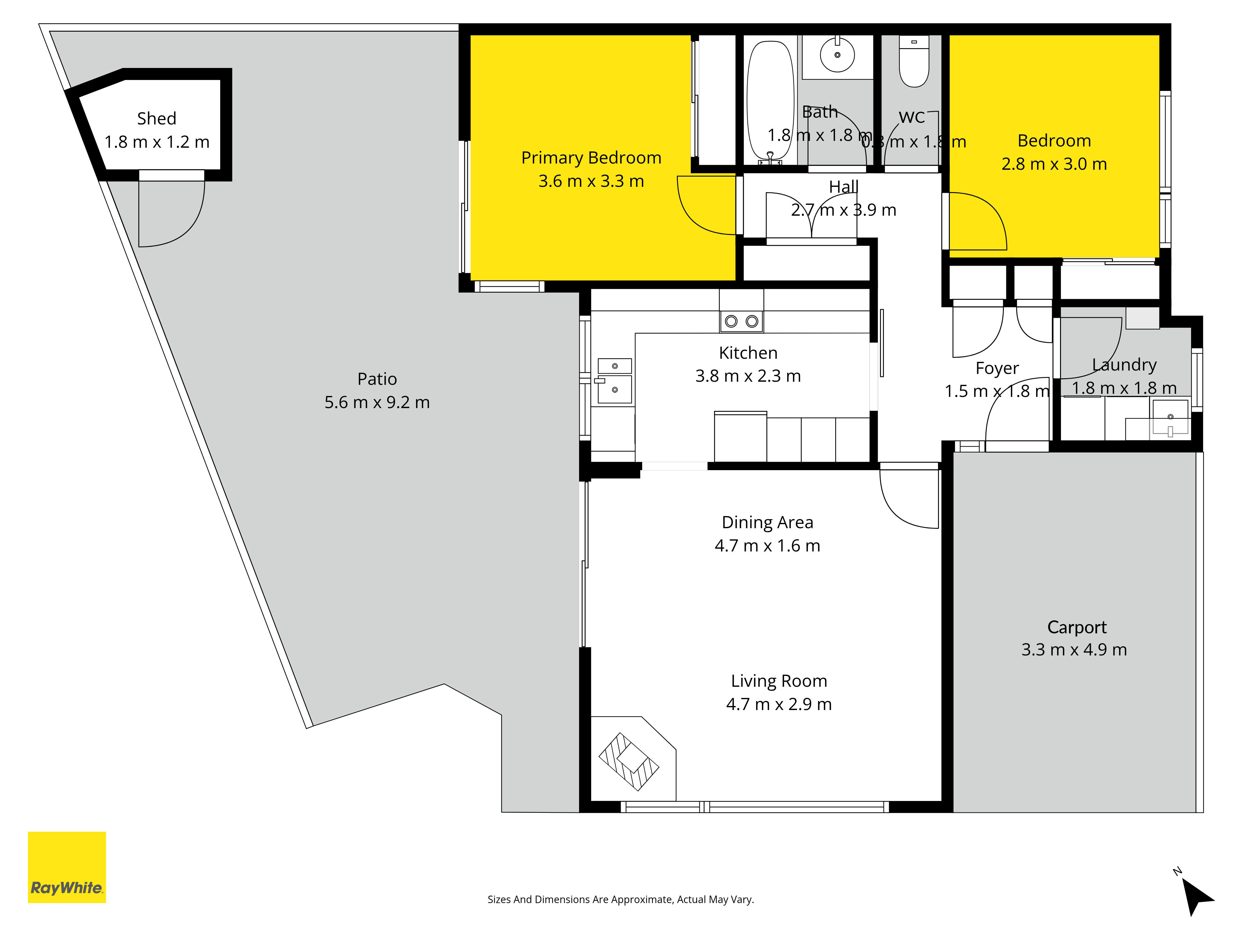
Whether you are a first home buyer, investor, or downsizer you must check out this cool Meadowbank unit that enjoys a beautiful, exclusive-use patio, lawn, garden, and BBQ area. North-west facing, this suntrap is on the St Heliers end of Gowing Drive.

Large windows flood the home with light, and it features a cozy lounge room with a wood fireplace and opens out onto the west-facing garden and BBQ area. The rest of the floor plan includes a galley-style kitchen, separate laundry, bathroom, and toilet. The master bedroom opens directly onto the patio and the second bedroom is a generous single. Keep dry as you enter the home via the secure covered carport off your driveway.

This is one of two units on a cross-lease, and your neighbour is a lovely family home on a full site. We are just minutes to Glen Innes and Meadowbank train stations and close to Eastridge and Meadowbank shopping precincts. St Heliers Village is an 8-minute drive away and the property is zoned for St Thomas's and Selwyn College.

Come and check us out - you could be in by Christmas!

• Crosslease

• Floor Area: 75sqm (approx.)

• Land Area: 1/3 share of 812sqm (mol)

• Council Rates: $3,510.79 p/a (2025/26)

• CV: $1,050,000 (2024)

• School Zones: St Thomas School, Selwyn College, Baradene College

• Residential - Mixed Housing Suburban Zone

• Rental Appraisal: $600 - $650 per week

Please call JAYNE KIELY 021 352 007 or AMY ROBERTSON 0274 820 100

We work with all agencies. Conjunctions are welcome.

Property Details

Suburb stats

Property ID RMU44208

Category
House
Status
Current
Bedrooms
2
Bathrooms
1
Carports
1
OSP
1

Inspection times

23 Nov 12:00PM - 12:30PM

27 Nov 2:00PM - 2:30PM

30 Nov 12:00PM - 12:30PM

04 Dec 2:00PM - 2:30PM

07 Dec 12:00PM - 12:30PM


Local Schools

* While every effort has been made to ensure the information displayed is accurate, please check details directly with the school before making decisions based on this information.

Primary
Intermediate
Secondary
St Thomas School (Auckland) - 810m away
Years 1-8
Co-ed
Allum Street
09 528 3938


St Thomas School (Auckland) - 810m away
Years 1-8
Co-ed
Allum Street
09 528 3938


Baradene College - 3.8km away
Year 7-15
Girls
237 Victoria Avenue
09 524 6019


Selwyn College - 960m away
Year 9-15
Co-ed
Kohimarama Road
09 521 9610


Baradene College - 3.8km away
Year 7-15
Girls
237 Victoria Avenue
09 524 6019



Show on map

Make an Appointment

Send an enquiry about this property to the agent


Jayne Kiely


Licensee Salesperson

Mobile: 021 352 007

Phone: (09) 520 9100

Amy Robertson


Licensee Salesperson

Mobile: 027 482 0100

Phone: (09) 520 9100


You May Also Like

Remuera, 102/4 Victoria Avenue

102/4 Victoria Avenue


1

1

2

Remuera, 4 Patey Street

4 Patey Street


3

3

1

Meadowbank, 208A Gowing Drive

208A Gowing Drive


2

1

2

Meadowbank, 149B Gowing Drive

149B Gowing Drive


4

2

3

Suburb Stats

Meadowbank


Median sale price in October 2025

$1,565,000

47% last month
5% same time as
last year

Monthly Trend

Total Sales in October 2025

83% last month
11 sales
10% same time as
last year

Monthly Sales