Watch our Auctions Live!
Watch our Auctions Live!

Trivelle Gardens - Where Ideal Living Begins

12,23 & 72/111 Settlers Avenue

3

2

3

2


share

Trivelle Gardens - Where Ideal Living Begins


12,23 & 72/111 Settlers Avenue

Hobsonville, Auckland

Asking Price $839,000

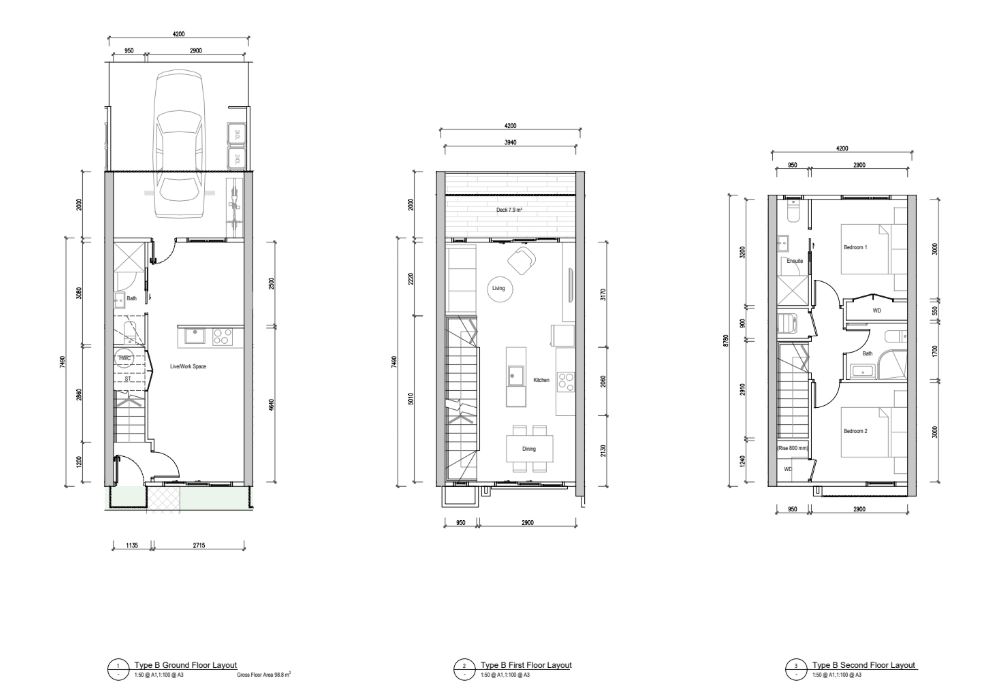
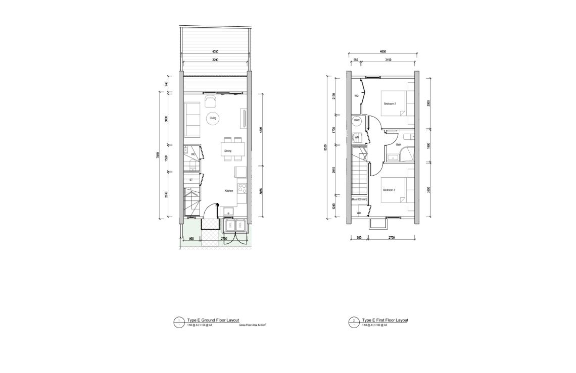
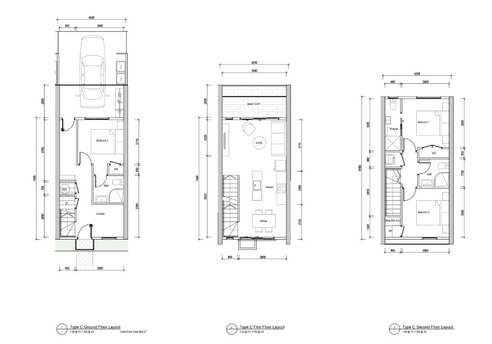
Welcome to Trivelle Gardens, a thoughtfully planned new community in Hobsonville by Unispot and designed for modern living at its best. These architecturally designed terraced homes balance quality, comfort, and connection-ideal for those seeking an easy, contemporary lifestyle.

Set across generous landscaped grounds Trivelle Gardens offer stylish two- and three-bedroom homes with open-plan living, private outdoor spaces, and an aspect that maximises light and warmth. Each home is finished with BOSCH appliances, quality materials, and the reassurance of a 10-Year Master Build Guarantee.

Located within one of Auckland's fastest-growing coastal suburbs, you'll enjoy an easy connection to everything that makes Hobsonville Point special-parks, schools, cafés, the Catalina Bay dining precinct, and the ferry to the city.

These homes are priced from just $679,000, offering incredible value for new construction in such a sought-after area. Whether you're a first-home buyer, investor, or downsizer, this is your opportunity to secure a brand-new home with completion expected in Q4 2026.

Buy now off-plan to lock in today's prices and take advantage of the exclusive 4.58% fixed-rate home loan available only to Trivelle Gardens purchasers (terms apply).

Modern, low-maintenance, and community-focused-Trivelle Gardens is more than a place to live. It's where ideal living begins.

Property Details

Property ID RMU44274

Category
House
Status
Current
Bedrooms
3
Bathrooms
2


Local Schools

* While every effort has been made to ensure the information displayed is accurate, please check details directly with the school before making decisions based on this information.

Primary
Intermediate
Secondary
Hobsonville School - 1.0km away
Years 1-8
Co-ed
104 Hobsonville Road
09 416 8619


St Paul's School (Massey) - 4.6km away
Years 1-6
Co-ed
498 Don Buck Road
09 832 7200


Hobsonville School - 1.0km away
Years 1-8
Co-ed
104 Hobsonville Road
09 416 8619


Hobsonville Point Secondary School - 1.0km away
Year 9-15
Co-ed
Hobsonville Point Road
09 975 7400



Show on map

Make an Appointment

Send an enquiry about this property to the agent


Frazer Mackenzie-Johnson


Licensee Salesperson

Mobile: 021 127 3711

Phone: (09) 520 9100

Jack Campbell


Licensee Salesperson

Mobile: 0210 840 7269

Phone: (09) 520 9100


You May Also Like

Hobsonville, 33 David Carnegie Road

33 David Carnegie Road


3

2

1


5

3

4

Hobsonville, 41 Settlers Avenue

41 Settlers Avenue


4

2

1


5

3

2